Ihr Traum-
grundstück wartet auf Sie!
×

Ihr Traumgrundstück wartet auf Sie!

Sind Sie auf der Suche nach einem Grundstück in Mecklenburg-Vorpommern? Wir verfügen über exklusive Kontakte und helfen Ihnen gerne, Ihr perfektes Grundstück zu finden.

Jetzt anrufen und informieren!
Wir freuen uns auf Ihre Anfrage

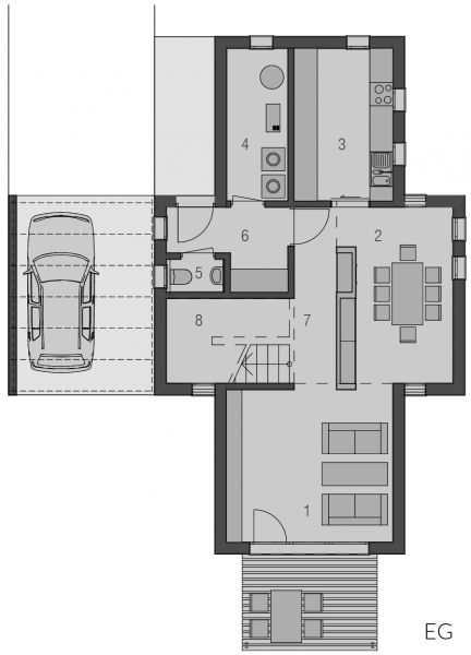
Typ Meerblick

Wohn-Nutzfläche:
ca. 132 m2

 

Der außergewöhnliche Fußabdruck des Haustyps "Meerblick" bestimmen sein individuelles Erscheinungsbild und seinen besonders reizvollen Grundriss. Die Raum- und Blickbezüge sind innen wie außen differenziert und spannungsvoll. Dies wird unter anderem durch die fein durchdachte Erschließung erzielt, die im Verhältnis zu den Wohnflächen nur wenig Raum beansprucht. So profitiert das Erdgeschoss neben einem intimen Eingangsbereich von viel Platz für Küche, Ess- und Wohnzimmer. Das geschickt eingestellte Treppenhaus erschließt Elternschlafzimmer, zwei Kinderzimmer und Bad im Obergeschoss.

Abbildungen enthalten Sonderausstattungen.

Zurück