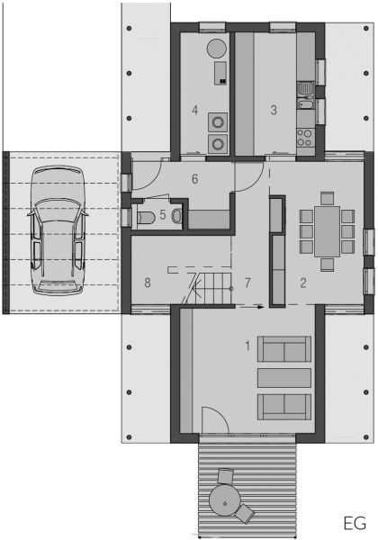
Typ Muschelgold
Wohn-Nutzfläche:
ca. 132 m2
Der Haustyp "Muschelgold" besitzt durchgehend volle Raumhöhen im Obergeschoss und ein weit ausladendes Dach. Die Raum- und Blickbezüge sind innen wie außen differenziert und spannungsvoll. Dies wird unter anderem durch die fein durchdachte Erschließung erzielt, die im Verhältnis zu den Wohnflächen nur wenig Raum beansprucht. Neben viel Platz für Küche, Ess- und Wohnzimmer im Erdgeschoss finden sich im Obergeschoss Elternschlafzimmer, zwei Kinderzimmer und Bad.
Abbildungen enthalten Sonderausstattungen.
