Typ Bernstein
Wohn-Nutzfläche:
ca. 151 m2
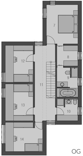
Beim Haustyp "Bernstein" besticht nicht nur die besondere Form mit vesetztem Baukörper und Gegengiebel – die ausgefeilte innere Aufteilung hat auch für größere Familien einiges zu bieten. Neben dem komfortablen Eingangsbereich mit Funktions- und Stauräumen ist vor allem der großzügig offene Wohn- Essraum mit seinem geschützten Terrassenbereich charakteristisch für das Erdgeschoss. Das Obergeschoss bietet mit Ankleide und Bad nicht nur viel Komfort für die Eltern sondern auch drei Zimmer und ein eigenes Bad für die Kinder.
Abbildungen enthalten Sonderausstattungen.
