Typ Sonnendeck
Wohn-Nutzfläche:
ca. 132 m2
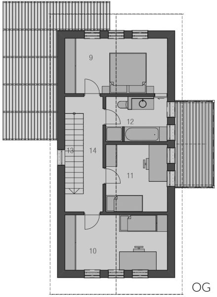
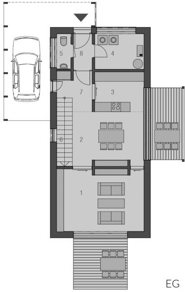
Langgestreckt und elegant ist der Baukörper des Haustyps "Sonnendeck" sonst sehr kompakt gehalten, mit geringem Dachüberstand und zurückhaltenden Auskragungen. Im Inneren erlaubt der sehr gerichtete Baukörper eine sehr spannungsvolle Raumanordnung, die bei klarer Zonierung trotzdem Großzügigkeit atmet - mit langen Fluchten und interessanten Blickbezügen, die sich bis nach Außen fortsetzen. Das obere Geschoss gehört ganz der Familie. Hier finden, erschlossen über einen großzügig zum Treppenhaus angeordneten Flur, Tageslichtbad, Eltern und zwei Kinderzimmer Platz.
Abbildungen enthalten Sonderausstattungen.
