Typ Sanddüne
Wohn-Nutzfläche:
ca. 116 m2
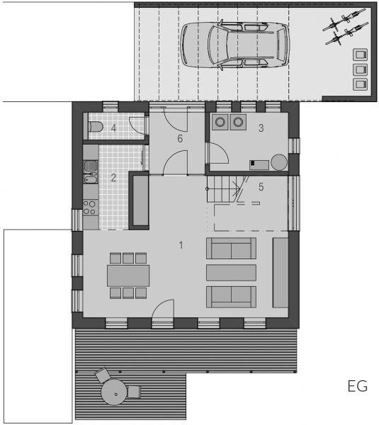
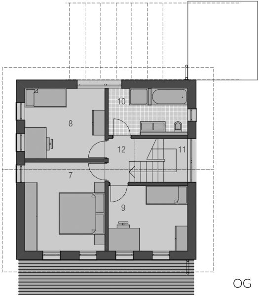
Wenn Sie nach viel Raum und Licht auf kompakter Fläche suchen, ist der Haustyp "Sanddüne" das Richtige. Langgestreckte Fensterformate verleihen ihm dabei eine besondere Eleganz und eröffnen vielschichtige Außenbezüge. Die optimale Raumausnutzung wird durch den sehr offenen Grundriss des Hauses möglich, der Verkehrsflächen minimiert und großzügige Raumsituationen, wie das zum Wohnzimmer offene, großzügig verglaste Treppenhaus schafft. Das Obergeschoss bietet zudem durchgehend volle Raumhöhe und Platz für Eltern, Bad sowie zwei Kinderzimmer.
Abbildungen enthalten Sonderausstattungen.
