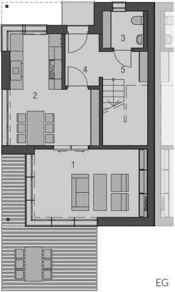
Typ Osthimmel
Wohn-Nutzfläche:
ca. 110 m2
Extravagant im Ausdruck präsentiert sich der Doppelhaustyp "Osthimmel". Strenge Form, ganz ohne Überstände, liebevoll gesetzte Öffnungen und reizvolle Übergänge in den Außenraum. Das Innere der Häuser setzt das innovative Formenspiel fort – minimale Verkehrsflächen, fließende Räume bis zum großzügigen Terrassenbereich. Im Obergeschoss finden drei Zimmer und ein Bad Platz. In Anordnung und Ausrichtung setzt das Doppelhaus "Osthimmel" ganz auf Einsparung von Aufwand, Außenflächen und Energie bei maximaler Privatsphäre.
Abbildungen enthalten Sonderausstattungen.
