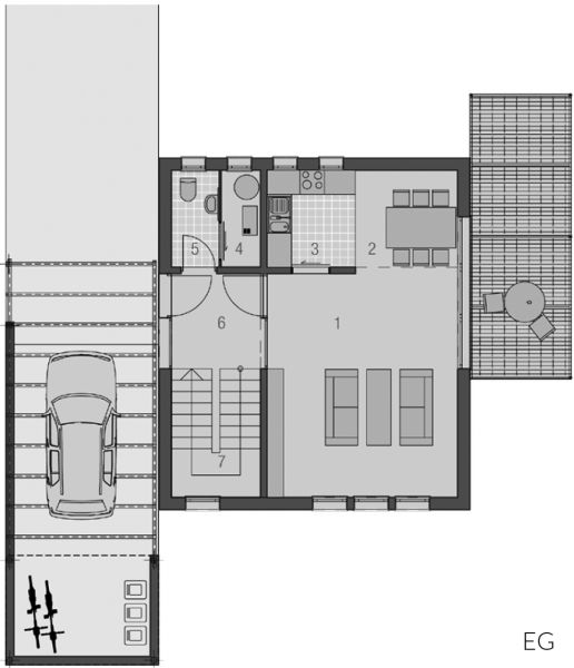
Typ Südufer
Wohn-Nutzfläche:
ca. 108 m2
Der Haustyp "Südufer" verwirklicht den Traum von den eigenen vier Wänden in einer kompakten Form mit viel Großzügigkeit. Klar geschnittene Innenräume schaffen viel Platz zum Wohnen und Empfangen von Gästen, großzügige Fenster bringen Licht und Blickbezüge nach außen. Das Obergeschoss hat Platz für Schlafen, Bad und Arbeiten oder auch Gäste. Bei aller Großzügigkeit birgt die kompakte Bauform auch den Vorteil eines kostengünstigen Unterhalts. Für die weitere Individualisierung durch Pergola, Terrasse, Carport oder Ähnliches bietet sich bei der Klaren Form besonders an.
Abbildungen enthalten Sonderausstattungen.
